Leave a message.

Thank you for your message. I will be in touch with you shortly.

Explore My Properties

Property Description

ALL NEW HIGH END RENOVATION Available for immediate move in upon approval!

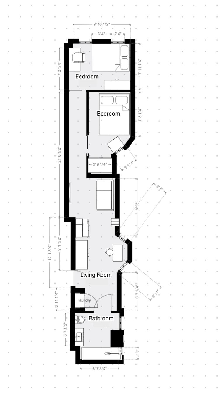
This is a great, updated, 2 bedroom in a pre-war, walkup building. Perfectly located in the East Village on a tree lined block of St Marks between 1st and 2nd Aves. 4 flights up to the 5th floor.
Featuring a open plan, this apartment has a living room with room for a couch, coffee table and entertainment center and 2 queen bed sized bedrooms.
The apartment has large north facing windows for great light and its super quiet and has hardwood floors.
The open kitchen has full sized appliances w/ dishwasher and microwave. Plus a high end bathroom with custom finishes and full sized laundry in unit and built in AC units

The unit features:
high-end kitchen
wood floors,
large closet
high ceilings
large windows,
great light.

The building features:

pre-war
radiator heat included
super on the block
pet ok
please note, no walls of any kind allowed
**Photos and floorplan are deemed acurate

** if you rent this listing you will be responsible for the following fees/funds:
$20 app fee per person
1st month's rent
1 month security deposit
$50 Late rent fee if your rent is late
$20 bounced check fee





Overview

Property Status
Leased
MLS ID
RLS20059562
Property Type
Condo
Year Built
1900

Features & Amenities

Neighborhood
East Village
View Description
City
Heat Type
Radiant
Air Conditioning
Central Air
Laundry Room
Building None, In Unit
Appliances
Dryer, Dishwasher, Microwave, Washer
Lease Price
$5,000/mo

Downloads

58 St Marks Place 14

Schedule a Tour

I would love to help you see this beautiful home! As a full-service brokerage, I can help you tour. Please submit an offer, and answer questions about the buying process.

Thank you

for your interest in 58 St Marks Place 14, New York City, NY 10003

I'm Interested In

58 St Marks Place 14

or Contact
58 St Marks Place 14
Navigate